- Council Tax Band: E
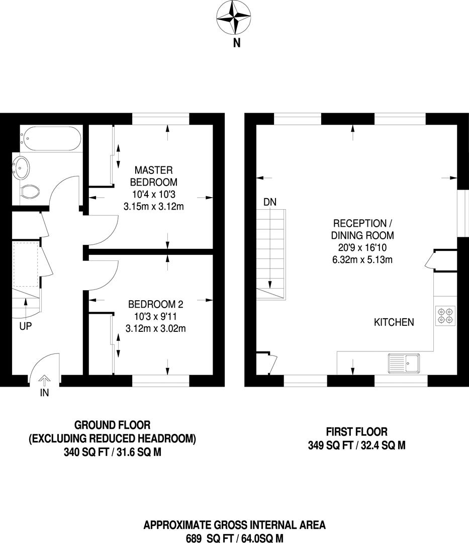
Helliwell & Co are proud to present this bright and spacious property which boasts a large open plan reception room with space for dining and a modern kitchen featuring integrated appliances and attractive wooden flooring. There are also two large double bedrooms with fitted wardrobes and a contemporary family bathroom equipped with a bathtub and power shower. Further benefits include ample storage space throughout. Offered to the market furnished or unfurnished.
St Mary’s Square is in a marvellous Ealing location. Set just off South Ealing Road, the property has great transport links, both for buses, and for South Ealing and Ealing Broadway stations – both inside a mile from the property. Ealing Broadway’s Elizabeth Line allows prospective Tenants unparalleled access to London and beyond. Ealing Broadway itself is convenient for amenities, and the variety of shops, bars, and restaurants it can offer is truly impressive.


Payment Calculator
- Principal and Interest
- Property Tax
- HOA fee



