- Council Tax Band: D
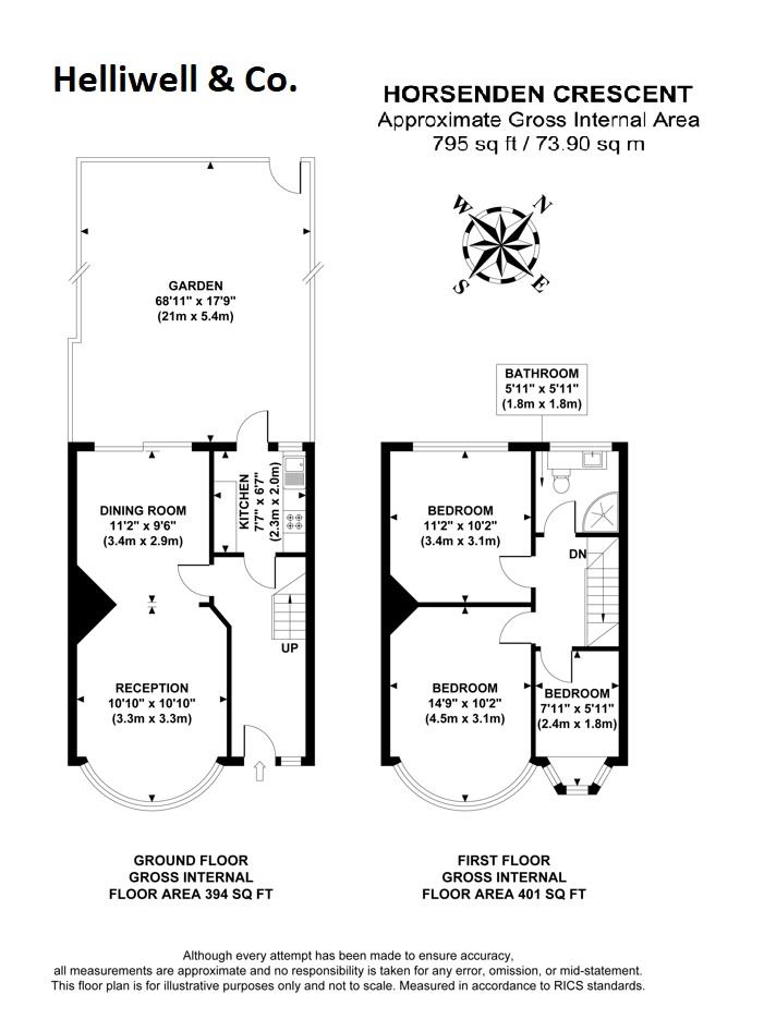
Helliwell & Co are delighted to present, this bright and spacious terraced house, which is offered to the market unfurnished and is available from mid-November. This lovely family house has a large double aspect reception room, a fully fitted kitchen, two double bedrooms, an additional office / study room and a brand new shower room. The property further benefits from off street parking, a large private garden and gas central heating.
Horsenden Crescent is ideally located for access to both Sudbury Hill (Piccadilly line) and Sudbury Hill Harrow (mainline) stations. As well as having an array of local shops, cafes and restaurants nearby, the property also benefits from the lovely open green spaces of Horsenden Hill Park.
Other Features
Additional Study / Office
Bright & Spacious Throughout
Council Tax Band D
Double Aspect Reception
Holding Deposit (1 weeks rent): £426.00
Large Private Garden
Long Term (12-24 months+)
Security Deposit (5 weeks rent): £2,134.62
Terraced Family House
Two Double Bedrooms

Payment Calculator
£ 5.73
per month- Principal and Interest
- Property Tax
- HOA fee
£ 5.73
